Update: This property is now SOLD
D.O.G.E. strikes again! The federal government terminated its lease for this beautiful, like-new building with plenty of parking.
Built in 2003, this well-located office building is move-in-ready. USDA Rural Development will continue to occupy and pay you rent until September. Then move your business in.
48 parking spaces. 5,936 SF single-user building on a 1.13 acre parcel of land.
Why put yourself through the painful process of building new when you can buy this like-new building at a fraction of construction cost?
Convenient Location
One block from N. Water Avenue, one block from E. Broadway/Gallatin Pike. One mile from “The Square”.
Gallatin is one of Nashville’s fastest growing communities and has been recognized as one of the top “power suburbs” in the United States.
Neighbors include Dollar General, Gallatin Parks and Recreation, Bills Elementary and Municipal Park. Close to the action but surrounded by green space.
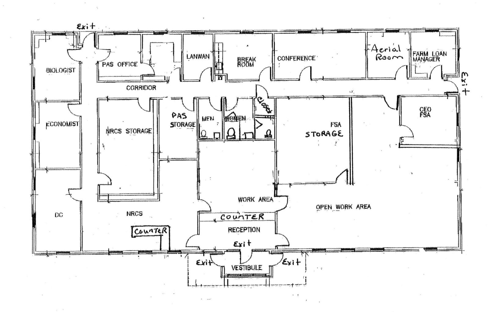
Attractive Layout
-
- 9 offices
- 3 storage rooms
- 3 open work spaces
- Reception area
- Men’s and Women’s restrooms
- Break room
- Conference Room

Zoned CS (Commercial Services)
Permitted uses include:
-
-
- Administrative services
- Consumer repair services
- Entertainment and amusement services
- Financial, consultative, and administrative services
- General business and communication services
- General personal services
- General retail trade
- Health care services
- Light construction services
-
Buyer $5,000 Convenience Credit
Buyer will receive a $5,000 credit at closing if our brokerage manages the entire transaction. We will prepare all the paperwork.
Contact Beau today to discuss this property at 615-200-9330 or Beau@SoldbyBeachwood.com
- Price: $1,199,000 ($200/SF)
- Area: 1.13 acres
- Phone Number: 615-200-9330
- Space (s.f.): 5,936 SF