Beau Beach, MBA CCIM presents:
$196,000 price reduction to ensure a timely sale.
1,524 SF turn-key, medical office building on 1 acre.
Plus a bonus 2,177 SF outbuilding that can subdivided and resold – or leased to a tenant.
Originally constructed in 1961 and gut remodeled in 2020, the property is occupied by the seller (a dentist) who will vacate at closing. Newer roof, newer HVAC. 13 paved parking spaces with an abundance of land on which to add more, if desired.
Why 407 Brewer?
The property is well-suited for law firms, professional offices, real estate agencies, medical practices, and similar businesses. With flexible commercial zoning in place, business operators can use the existing structure without extensive rezoning or permitting hurdles.
The site comprises a one‐acre lot offering modern facilities on a generous footprint. The sizeable lot allows for ample parking, potential expansion, or outdoor branding, while the renovation underscores move-in readiness and reduced upfront capital expenditure.
Located at 407 Brewer in South Nashville (37211), the site sits within a stable residential and commercial market, serving nearby neighborhoods such as McMurray and Huntingdon. Its proximity to Nolensville Pike and central Nashville positions it within accessible range of downtown and adjacent suburbs. The building’s visibility and one-acre setting enhance its appeal for client-facing businesses seeking presence and ease of access.
In summary, 407 Brewer delivers a unique combination of flexibility, usable space, and strategic location. Its CL zoning allows multiple professional uses, while the renovated building and ample lot reduce startup overhead. Positioned within a well-established commercial-residential corridor and priced competitively, the property offers both operational suitability and long‑term development potential.
Value-add opportunity: Subdivide the parcel and resell the back portion
This property could be easily subdivided which would allow the buyer to resell the back portion of the parcel for profit. The parcel is set up very well for a subdivision.

Value-add opportunity: Lease the outbuilding to a paying tenant
Alternatively, the buyer could simply lease the rear building to a tenant which will create additional monthly cash flow for the buyer’s business.

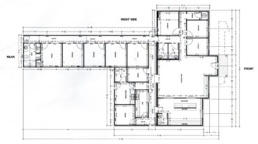
Value-add opportunity: Expand the building
This hypothetical expansion plan adds 4 exam rooms, two offices, lab, consultation room and a 3rd restroom.

Great location
Steps from the intersection of Nolensville Pike and Brewer Drive. Traffic count at the intersection is 35,362 vehicles per day!
One mile to Old Hickory Blvd. 2 miles to Harding Place. 3 miles to I-24. 5 miles to I-65.
Nearby businesses include: Tusculum Strike and Spare, Zaxby’s, Bar-B-Cutie Smokehouse, Electronic Express, Domino’s Pizza and Walgreen’s.
Quickly improving neighborhood
Across Brewer Drive, a very impressive new development is planned to include a coffee shop, barbershop, hair salon, nail salon and grocery store. This new development will lift the values of surrounding properties. Get in now before prices adjust.

Very Valuable Land
1.71 acres of land two blocks away (an assemblage of 399 Ocala, 5404 Nolensville and 5408 Nolensville) recently sold for $1,871,345/acre.
Attractive zoning
Commercial Limited (CL) zoning. Permitted uses include: medical office, office, auto sales, auto service, business services, personal care services and many more. Click here for the full zoning table.
$3.1B Transit Plan to improve Nolensville Pike
Nolensville Pike is set to receive a major transformation under Nashville’s Choose How You Move transit initiative. Here’s how the corridor will be enhanced:
A high-frequency All‑Access Corridor: Nolensville Pike, one of the city’s busiest transit corridors, will see buses running every 15 minutes or better, complete with transit signal priority and provisions for future dedicated lanes or Bus Rapid Transit (BRT)
Significant pedestrian and cycling upgrades: The corridor will be rebuilt as a “complete street,” featuring new or improved sidewalks, protected bike lanes, and safer crossings at 35 high-injury intersections across the city.
Advanced safety systems: A $10 million SMART grant supports Phase II of the LADDMS initiative on Nolensville Pike, deploying LiDAR, sensors, and near-miss analytics to continually monitor and improve cyclist and pedestrian safety.
Rebuilt intersections and signals: Nearly 600 traffic signals across Nashville—including along Nolensville Pike—will be upgraded to adaptive, real-time systems to streamline transit and traffic flow.
Together, these improvements will remake Nolensville Pike into a safer, more accessible corridor that moves people efficiently—whether they’re walking, biking, taking the bus, or driving.
Buyer to receive $5,000 Convenience Credit
Buyer will receive a $5,000 credit at closing if our brokerage manages the entire transaction. We must prepare all the paperwork.
Priced to ensure a timely sale! Contact Beau at 615-200-9330 or email Beau@Beachwood.ai for more information or to schedule a tour.
- Price: $1,199,000 ($324/SF)
- Area: 1.01 Acres
- Phone Number: 615-200-9330
- Space (s.f.): 3,701 SF (two buildings)





















